Dain E. Hood
Licensed Real Estate Salesperson
REALTOR®
Walton, NY
Office: (607) 865-7000 (607) 287-8939

3927 Route 9, Livingston, NY 12534

6 Total Photos [Click to View All]

Property Description

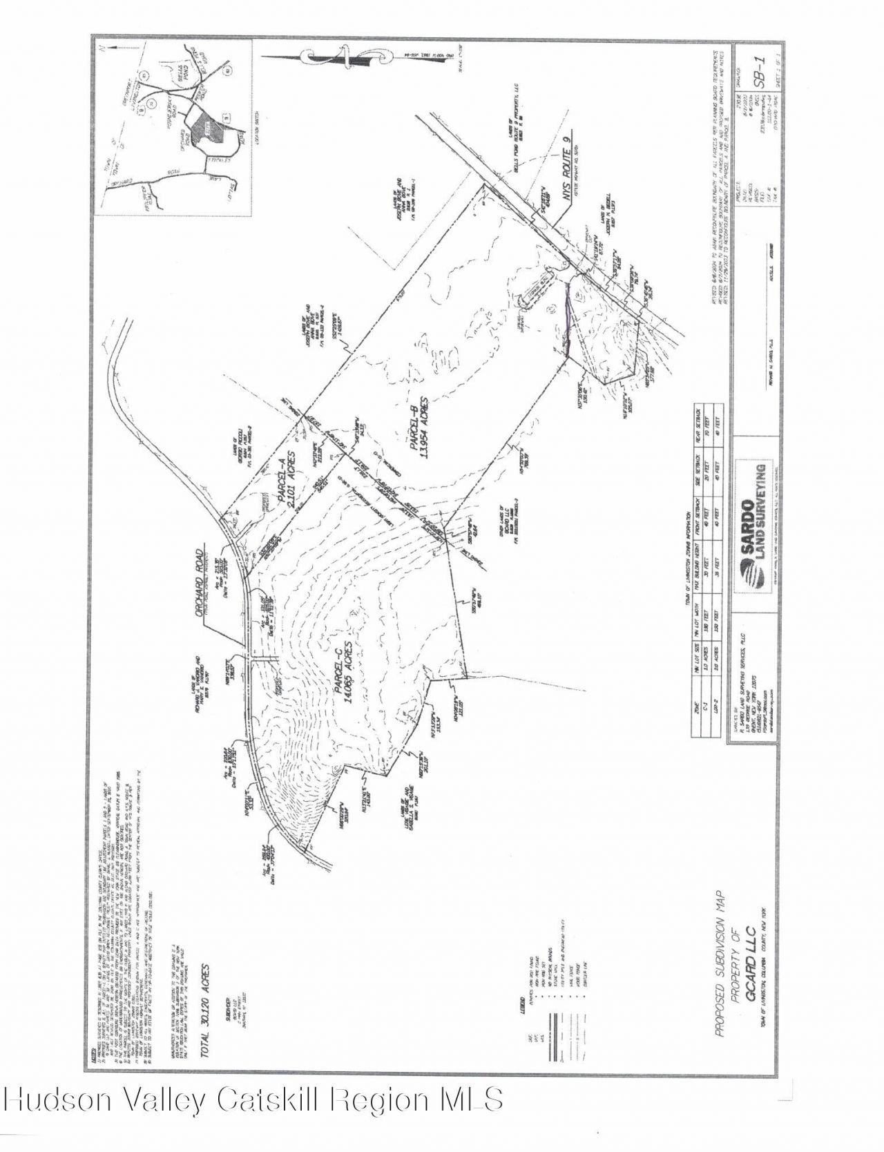
Livingston NY 13.95 Prime, Level, Commercial Acreage on Route 9 just South of Bells Pond Intersection (junction Routes 9 and 82) with paved highway entrance and 24 self storage units, grossing $20,000. Room for 20 additional groups of 24 self storage units, projected gross $400,000. Or other commercial uses.10-15 minutes from Hudson, Red Hook, Amtrak, Catskill, Rip Van Winkle Bridge, NYS Thruway and Taconic Parkway. Separate 2 ac residential parcel on Orchard Road could provide separate access to the commercial parcel on Route 9, available for $85,000.

3927 Route 9 | MLS# 156843

This land located at 3927 Route 9, Livingston, NY 12534 is currently listed for sale with an asking price of $549,000. The property has approximately 14.33 Acres. Route 9 is located within the Hudson Schools school district. Search Livingston real estate on dain-hood.timberlandproperties.com today.

Gallery

Property Features

Property Type: Land - Residential
Lot Size: 14.33 Acres

Feature Descriptions

Days on Site: 297
Lot Dimensions: 13.95 acres
Parcel #: 151-1-4.3
Road Surface: Paved
Sewer: None

Local Schools

School District: Hudson Schools

Estimate Your Payment

Estimated Payment

$ 1,381.96 per month $1,221.84 Principal & Interest $0.00 Property Tax (data not provided by mls) $160.13 Homeowner's Insurance

Change Payment Information

%
years/fixed
yearly
yearly (est.)
(Payments are an estimate and may vary by lender)

Demographics

Listed By / Shown By

Listing By

Agency Name: Barns & Farms Realty, LLC

Shown By

Agent Name: Dain E. Hood
Agent Phone: (607) 287-8939
Agency Title: Timberland Properties

IDX logo

All information is deemed reliable but not guaranteed. All properties are subject to prior sale, change, or withdrawal. Neither broker(s), nor agent(s) shall be responsible for any typographical errors, misinformation, or misprints, and shall be held totally harmless. Disclaimer: All information deemed reliable but not guaranteed. All properties are subject to prior sale, change or withdrawal. Neither listing broker(s) or information provider(s) shall be responsible for any typographical errors, misinformation, misprints and shall be held totally harmless. Listing(s) information is provided for consumers personal, non-commercial use and may not be used for any purpose other than to identify prospective properties consumers may be interested in purchasing. Information on this site was last updated 03/03/2026. The listing information on this page last changed on 03/03/2026. The data relating to real estate for sale on this website comes in part from the Internet Data Exchange program of Delta Media Group MLS (last updated Tue 03/03/2026 12:54:34 AM EST) or Global MLS (last updated Tue 03/03/2026 12:51:55 AM EST) or New York State Alliance MLS (last updated Tue 03/03/2026 12:50:30 AM EST) or Hudson Valley Catskill Region MLS (last updated Tue 03/03/2026 12:11:14 AM EST) or OneKey MLS (last updated Tue 03/03/2026 12:49:04 AM EST). Real estate listings held by brokerage firms other than Timberland Properties may be marked with the Internet Data Exchange logo and detailed information about those properties will include the name of the listing broker(s) when required by the MLS. All rights reserved.

All information is deemed reliable but not guaranteed. All properties are subject to prior sale, change, or withdrawal. Neither broker(s), nor agent(s) shall be responsible for any typographical errors, misinformation, or misprints, and shall be held totally harmless.

Privacy Policy / DMCA Notice / ADA Accessibility

Login to My Homefinder

Pixel